2196*2047.agence-bip.36-mer33320eysnes/lpizwz.77+95
4724051

Bordeaux 33000 – Vente Appartement 4 pièces 3 chambres

540.000 €

Bases

Référence agence du bien 77 Vente/Loc… Maison/Appart… Nombre de pièces 4
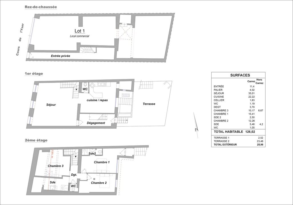
Surface (m²) 126 Année de construction 1812 Chambres 3 chambres Salles de bain 2 salles de bain
Prix au m² 4.286 €

Vidéo / Visite virtuelle

  • Vidéo :

Description

  • Description :

    Bel appartement T4, de 126 m², remis à neuf, seul logement au dessus d'un local commercial au rez-de-chaussée. Il dispose, au niveau rue, d'une entrée privée, d'où un escalier permet d'accéder à un grand séjour lumineux, côté rue, largement ouvert sur une grande cuisine, donnant à l'arrière sur une grande terrasse de 26 m² sans vis à vis. du séjour, un escalier mène l'étage supérieur,, sous rampant, constitué de trois chambres, dont une avec salle d'eau privative et accès direct à la terrasse, d'une salle d'eau et d'un wc. Chauffage électrique, chauffe eau thermodynamique et pompe à chaleur. La cuisine sera équipée. Le secteur est bien pourvu en commerces, transports et établissements scolaires. Diagnostic du 28/03/2025 'C' Estimation des coûts annuels : entre 1 222 euros et 1 654 euros par an. Prix moyens des énergies indexées au sur les années 2021, 2022 et 2023. Taxe foncière 1900 euros. Honoraires à la charge du vendeur. Les informations sur les risques auxquels ce bien est exposé sont disponibles sur le site Géorisques : www.georisques.gouv.fr.
    Les informations sur les risques auxquels ce bien est exposé sont disponibles sur le site Géorisques : georisques.gouv.fr.

Localisation

Caractéristiques

  • Nombre d'étages : 1
  • Etage : 1er
  • Nombre de WC : 2
  • Charges : 20
  • Libellé : T4 - 126m ²
  • WC séparés 
  • Orientation est 
  • Terrasse 
  • Climatisation 
  • En copropriété 
  • Nombre de lots : 2
  • Charges annuelles : 250
  • Honoraires à la charge de : Vendeur
  • Part des honoraires pour l'état des lieux : 0.00
  • Barème des honoraires de l'agence : Www.agence-bip.fr/Honoraires.pdf
  • Date de réalisation du DPE : 28/03/2025
  • DPE coût min conso : 1222
  • DPE coût max conso : 1654
  • DPE date référence conso : 2023

ENERGIE

139 kWhEP/m².an

GES

4 kgeqCO2/m².an

Contacter l'agent immobilier

Je suis d'accord avec les Conditions d'utilisation

Partagez cette page

Copier

Ou partager avec

 
<
Retour

Réinitialiser le mot de passe

Entrez votre adresse e-mail et nous vous enverrons un lien pour changer votre mot de passe.

Commencez à utiliser votre compte

Pour enregistrer vos biens préférés et plus encore

Inscrivez-vous avec votre adresse e-mail

Mot de passe oublié ? Le réinitialiser

Agents immobiliers, déposez vos annonces

Commencez à utiliser votre compte

Pour enregistrer vos biens préférés et plus encore

Je suis d'accord avec les Conditions d'utilisation

Mot de passe oublié ? Le réinitialiser

Agents immobiliers, déposez vos annonces