2196*2047.agence-bip.36-mer33320eysnes/lpizwz.106+123
4737769

BRUGES 33520 – Vente maison/villa 4 pièces 3 chambres

527.000 €

Bases

Référence agence du bien 106 Vente/Loc… Maison/Appart… Nombre de pièces 4
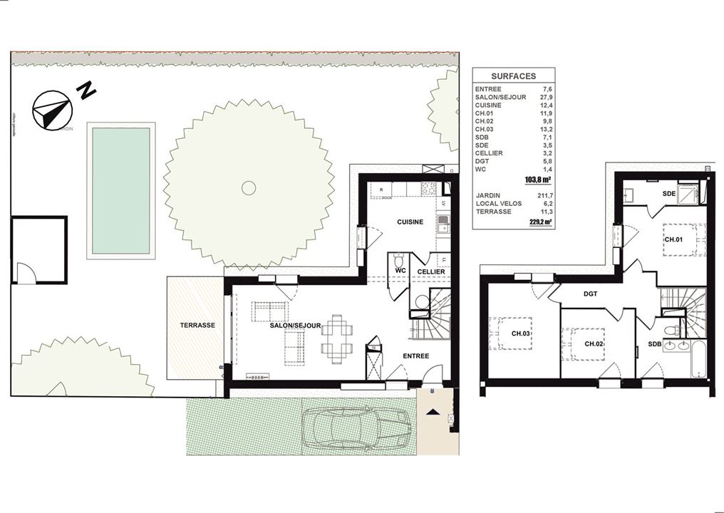
Surface (m²) 104 Surface du terrain (m²) 229 Année de construction 2026 Chambres 3 chambres
Salles de bain 2 salles de bain Prix au m² 5.067 €

Description

  • Description :

    Jolie maison individuelleT4 neuve, de 104 m² habitables, dotée d'un jardin de 229 m², avec piscine , dans un petit lotissement de 17 lots, à Bruges, à 150 m de l’arrêt du tram D. Elle se compose au rez-de-chaussée d'une entrée avec placard, d'un séjour orientée Sud, ouvrant sur le jardin au travers d’une large baie, d'une cuisine et d'un cellier. À l’étage, sous rampant, de trois chambres dont une avec salle d'eau privative et d’une salle de bain. Conforme à la norme BBC RT-2012, elle dispose d'un système de chauffage et de production d'eau chaude par pompe à chaleur air-eau. La taxe foncière est de 1850 euros, les charges mensuelles de l’association syndicale sont de 50 euros et les honoraires d'agence sont à la charge du vendeur. Elle sera disponible en juin 2026. Les honoraires d’agence sont à la charge du vendeur. Les risques auxquels ce bien est exposé sont disponibles sur le site Géorisques: www.georisque.gouv.fr

Localisation

Caractéristiques

  • Etage : Rez-de-chaussée
  • Refait à neuf 
  • Nombre de WC : 2
  • Charges : 50
  • Libellé : Maison indépendante - 104m ²
  • WC séparés 
  • Orientation sud 
  • Nombre de parkings : 2
  • Terrasse 
  • Piscine 
  • Coup de coeur 
  • Bilan consommation énergie : Non soumis
  • Bilan émission GES : Non soumis
  • Honoraires à la charge de : Vendeur
  • Part des honoraires pour l'état des lieux : 0.00
  • Barème des honoraires de l'agence : Www.agence-bip.fr/Honoraires.pdf

Contacter l'agent immobilier

Je suis d'accord avec les Conditions d'utilisation

Partagez cette page

Copier

Ou partager avec

 
<
Retour

Réinitialiser le mot de passe

Entrez votre adresse e-mail et nous vous enverrons un lien pour changer votre mot de passe.

Commencez à utiliser votre compte

Pour enregistrer vos biens préférés et plus encore

Inscrivez-vous avec votre adresse e-mail

Mot de passe oublié ? Le réinitialiser

Agents immobiliers, déposez vos annonces

Commencez à utiliser votre compte

Pour enregistrer vos biens préférés et plus encore

Je suis d'accord avec les Conditions d'utilisation

Mot de passe oublié ? Le réinitialiser

Agents immobiliers, déposez vos annonces