2268*ABITHEA.abithea-la-ciotat.37-ral13600la-tat/lpizwz.PDLT01+101508
4915037

La Ciotat 13600 – Vente maison/villa 5 pièces 4 chambres

595.000 €

Bases

Référence agence du bien PDLT01 Vente/Loc… Maison/Appart… Nombre de pièces 5
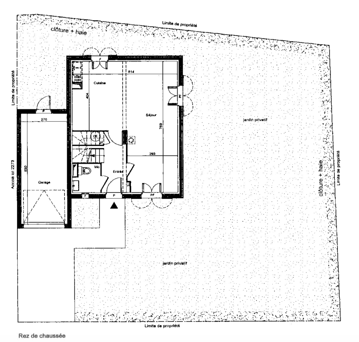
Surface (m²) 103 Surface du terrain (m²) 319 Année de construction 2010 Chambres 4 chambres
Salles de bain 2 salles de bain Prix au m² 5.777 €

Description

  • Description :

    *** BAISSE DE PRIX *** C'est dans le quartier de Roumagoua à La Ciotat que nous vous proposons à la vente en exclusivité cette maison T5 de 103 m2 construite en 2010 sur une parcelle de 319 m2 _ A l'étage, la maison dispose de 4 belles chambres dont une avec salle d'eau, une salle de bain et un wc,_ Le rez de chaussée est composé d'un hall d'entrée avec placard, d'un wc, d'un vaste espace séjour/cuisine et un garage attenant._ En extérieur, la maison dispose d'une terrasse, d'un terrain de pétanque dans le jardin et d'une place de parking privative,_ Coté mobilité, vous bénéficierez de la proximité des ecoles, des commerces de proximité, et d'un accès rapide à l'autoroute,_ La maison fait partie d'un groupement d'habitations de 7 maisons en association syndicat libre qui bénéficie d'un accès à une piscine commune au sein de la résidence fermée,_ Prix de vente : 575 000 euros, honoraires à la charge du vendeur - Charges d'ASL : 56 euros/mois - Taxes foncières : 2020 euros/an_ Ce bien vous est présenté par l'agence ABITHEA, 37 avenue Frédéric Mistral, 13600 La Ciotat Contact : 0442984650 _ Les informations sur les risques auxquelles le bien est exposé sont disponible sur le site Géorisques _ Date de réalisation du diagnostic énergétique : 19/02/2026 - Consommation conventionnelle : 149 kWh ep/m2.an (Classe C) _ Estimation des emissions : 5 kg eqCO2/m2.an (Classe A) _ Estimation des couts annuels : entre 1 440 EUR et 1 990 EUR par an Prix moyens des energies indexes sur les annees 2021, 2022, 2023
    Les informations sur les risques auxquels ce bien est exposé sont disponibles sur le site Géorisques : www.georisques.gouv.fr

Localisation

Caractéristiques

  • Nombre d'étages : 2
  • Etage : 1er
  • Nombre de WC : 2
  • Charges : 80
  • Libellé : Maison T5 - 103 m2 - 4 chambres - Garage - Jardin
  • Type de chauffage : Individuel électrique radiateur
  • Type de cuisine : Aucune
  • Orientation sud 
  • Nombre de parkings : 1
  • Nombre de boxes : 1
  • Terrasse 
  • Mandat en exclusivité 
  • Coup de coeur 
  • Surface séjour : 47
  • En copropriété 
  • Syndicat des copropriétaires en procédure 
  • Détail procédure du syndicat des copropriétaires : PROCESS
  • Honoraires à la charge de : Vendeur
  • Barème des honoraires de l'agence : Https://www.abithea.fr/i/redac/honoraires?honofor=19
  • Date de réalisation du DPE : 19/02/2026
  • DPE coût min conso : 1440
  • DPE coût max conso : 1990
  • DPE date référence conso : 01/01/2021

ENERGIE

149 kWhEP/m².an

GES

5 kgeqCO2/m².an

Contacter l'agent immobilier

Je suis d'accord avec les Conditions d'utilisation

Partagez cette page

Copier

Ou partager avec

 
<
Retour

Réinitialiser le mot de passe

Entrez votre adresse e-mail et nous vous enverrons un lien pour changer votre mot de passe.

Commencez à utiliser votre compte

Pour enregistrer vos biens préférés et plus encore

Inscrivez-vous avec votre adresse e-mail

Mot de passe oublié ? Le réinitialiser

Agents immobiliers, déposez vos annonces

Commencez à utiliser votre compte

Pour enregistrer vos biens préférés et plus encore

Je suis d'accord avec les Conditions d'utilisation

Mot de passe oublié ? Le réinitialiser

Agents immobiliers, déposez vos annonces