2196*2047.agence-bip.36-mer33320eysnes/lpizwz.94+111
4723970

LE TAILLAN MEDOC 33320 – Vente maison/villa 4 pièces 3 chambres

413.000 €

Bases

Référence agence du bien 94 Vente/Loc… Maison/Appart… Nombre de pièces 4
Surface (m²) 94 Surface du terrain (m²) 288 Année de construction 2027 Chambres 3 chambres
Salles de bain 2 salles de bain Prix au m² 4.394 €

Description

  • Description :

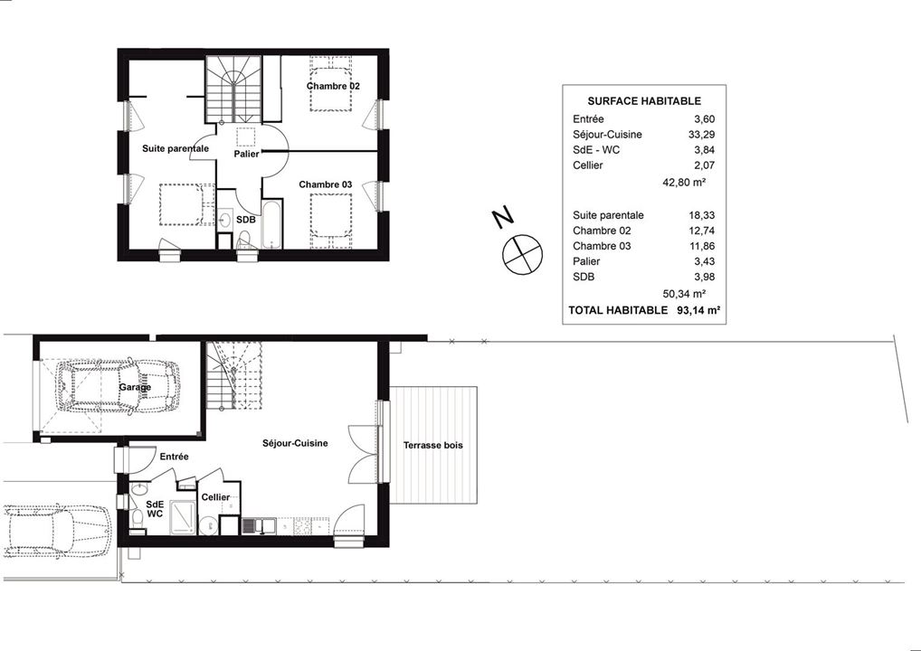
    Maison T4, à étage, de 94 m² habitables, avec garage, dans un petit hameau, à 500 m du centre commercial et du collège du Taillan. Sur un terrain de 288 m², au calme en fond de programme, elle est accolée à une autre sur un côté. Elle se compose, au rez-de-chaussée, d'une entrée, d'un séjour-cuisine ouvrant sur le jardin par une large baie, d'un cellier, d'une salle d'eau et d'un garage. À l'étage, d'une chambre parentale avec dressing, de deux chambres et d'une salle de bains. Conforme à la règlementation thermique RE2020, le chauffage-rafraichissement sera assuré par une pompe à chaleur et la production d'eau chaude par un chauffe eau thermodynamique. Le hameau compte 46 logements, la taxe foncière sera de 1900 euros, les charges mensuelles de 30 euros et les honoraires sont à la charge du vendeur. La maison sera disponible début 2027. Les informations sur les risques auxquels de bien est exposé sont disponibles sur le site Géorisques: www.georisque.gouv.fr

Localisation

Caractéristiques

  • Etage : Rez-de-chaussée
  • Refait à neuf 
  • Nombre de WC : 2
  • Charges : 30
  • Libellé : Maison de village - 94m ²
  • Orientation sud 
  • Orientation est 
  • Nombre de parkings : 1
  • Nombre de boxes : 1
  • Terrasse 
  • Climatisation 
  • Coup de coeur 
  • Bilan consommation énergie : Non soumis
  • Bilan émission GES : Non soumis
  • En copropriété 
  • Nombre de lots : 46
  • Charges annuelles : 360
  • Honoraires à la charge de : Vendeur
  • Part des honoraires pour l'état des lieux : 0.00
  • Barème des honoraires de l'agence : Www.agence-bip.fr/Honoraires.pdf

Contacter l'agent immobilier

Je suis d'accord avec les Conditions d'utilisation

Partagez cette page

Copier

Ou partager avec

 
<
Retour

Réinitialiser le mot de passe

Entrez votre adresse e-mail et nous vous enverrons un lien pour changer votre mot de passe.

Commencez à utiliser votre compte

Pour enregistrer vos biens préférés et plus encore

Inscrivez-vous avec votre adresse e-mail

Mot de passe oublié ? Le réinitialiser

Agents immobiliers, déposez vos annonces

Commencez à utiliser votre compte

Pour enregistrer vos biens préférés et plus encore

Je suis d'accord avec les Conditions d'utilisation

Mot de passe oublié ? Le réinitialiser

Agents immobiliers, déposez vos annonces