Bases
| Référence agence du bien 93 | Vente/Loc… Vente | Maison/Appart… Maison/villa | Nombre de pièces 5 |
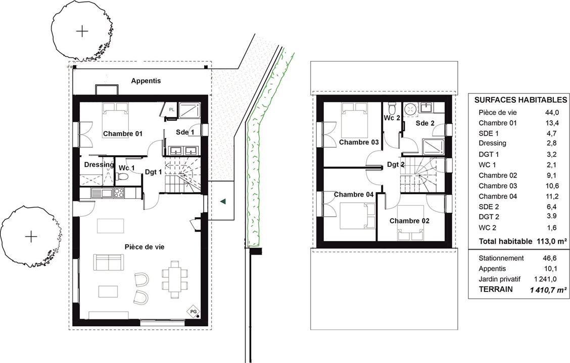
| Surface (m²) 113 m² | Surface du terrain (m²) 1411 | Année de construction 2027 | Chambres 4 chambres |
| Salles de bain 2 salles de bain | Prix au m² 4.204 € |
Description
-
Description :
Jolie maison neuve, T5, de 113 m² habitables, sur un terrain de 1412 m², à 500 m d'un centre commercial et du collège du Taillan. Elle se compose, au rez-de-chaussée d'une pièce de vie de 44 m², d'une suite parentale avec salle d'eau et dressing et d'un wc. À l'étage, de trois chambres, d'une salle d'eau et d'un wc. Conforme à la règlementation RE2020, le chauffage est assuré par une pompe à chaleur triple service et la production d'eau chaude par un ballon thermodynamique connecté à la pompe à chaleur. Un poêle à granulés apporte un confort supplémentaire. Un appentis de 10 m² sur le côté de la maison permet d'abriter des deux roues ou des matériels divers. La maison se situe, en bout de rue, dans une copropriété horizontale, de huit maisons et n'est pas mitoyenne. Elle jouit d'un environnement calme. Le parking relais du tram D, vers Bordeaux-centre est à 5 minutes en voiture. La taxe foncière sera de 2100 euros et les charges de 20 euros par mois. Les honoraires sont à la charge du vendeur. Elle sera disponible en mars 2027. Les informations sur les risques auxquels de bien est exposé sont disponibles sur le site Géorisques: www.georisque.gouv.fr
Localisation
Caractéristiques
- Etage : Rez-de-chaussée
- Refait à neuf
- Nombre de WC : 2
- Charges : 20
- Libellé : Maison - 113m ²
- WC séparés
- Orientation ouest
- Nombre de parkings : 2
- Aménagement pour handicapés
- Coup de coeur
- Bilan consommation énergie : Non soumis
- Bilan émission GES : Non soumis
- En copropriété
- Nombre de lots : 8
- Charges annuelles : 240
- Honoraires à la charge de : Vendeur
- Part des honoraires pour l'état des lieux : 0.00