1953*439.bouziaseil-ibilier.1-alle58000nevers/lpizwz.7241+1259
4624732

Nevers 58000 – Vente maison/villa 7 pièces 4 chambres

88.000 €

Bases

Référence agence du bien 7241 Vente/Loc… Maison/Appart… Nombre de pièces 7
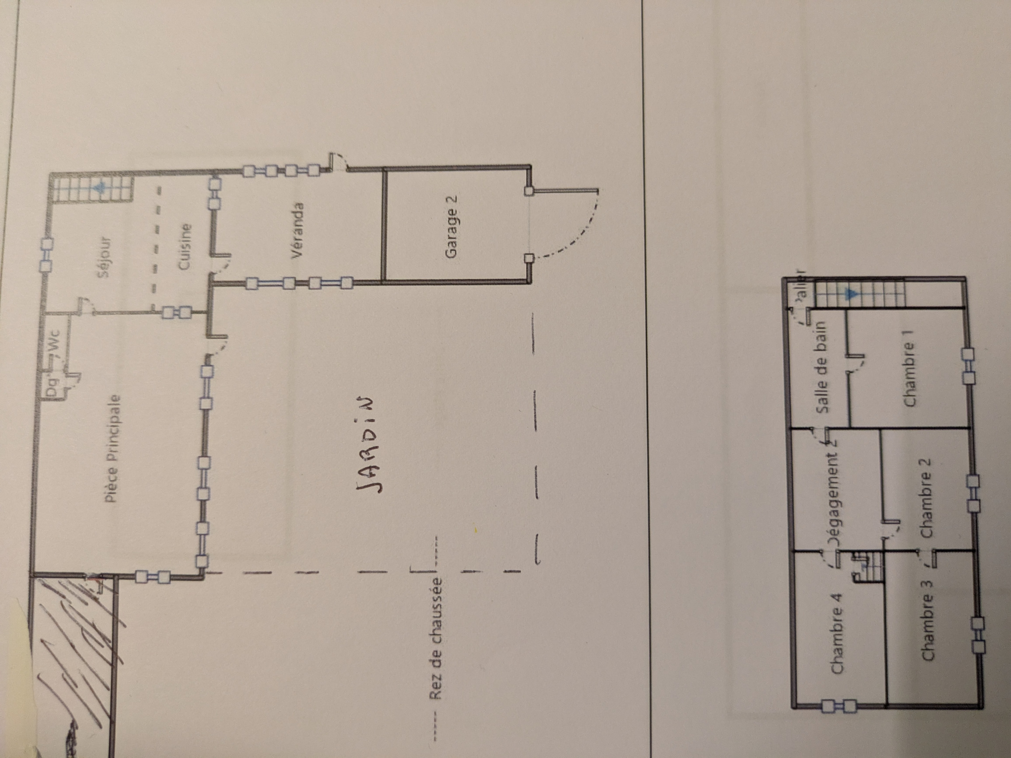
Surface (m²) 150 Surface du terrain (m²) 295 Année de construction 1920 Chambres 4 chambres
Salles de bain 1 salle de bain Prix au m² 587 €

Vidéo / Visite virtuelle

  • Vidéo :

Description

  • Description :

    NEVERS Quartier Colbert victor hugo à 3Mn à pied du centre ville dans quartier résidentiel, maison de ville surface 150 m2 habitable et garage comprenant au rez de chaussée séjour salon 54 m2 sol carrelage avec baies aluminium coulissantes, cuisine avec coin repas 20 m2, salon d'été 18 m2 , au 1er étage bureau 12 m2 salle de bains wc, 4 chambres de 17 m2 13 m2 12.68 m2 12 m2 Grenier sur l'ensemble.Chauffage central gaz.. Parking 2 voitures à l'intérieur de la propriété plus garage. , Jardin surface totale 295 m2. Diagnostique DPE 245 (E) risque naturel et technologique sur georisquesi.gouv Affaire à saisir très rapidement pour ce quartier résidentiel recherché pour sa proximité de tous services PRIX 88 000 EUR frais agence charge vendeur.( offre possible);quelques travaux au 1er étage à prévoir UrgentTous renseignements Actimmo58 Nevers tel 0386570079

Localisation

Caractéristiques

  • Nombre d'étages : 1
  • Etage : Rez-de-chaussée
  • Nombre de WC : 1
  • Quartier / proximité : Quartier Colbert
  • Libellé : NEVERS COLBERT MAISON DE VILLE 150 m2habitable Garage
  • Type de chauffage : Gaz radiateur
  • Type de cuisine : Séparée
  • Orientation sud 
  • Nombre de parkings : 2
  • Nombre de boxes : 1
  • Terrasse 
  • Transport : station : Bus
  • Surface séjour : 54
  • Nombre de terrasses : 1
  • En copropriété 
  • Nombre de lots : 8
  • Barème des honoraires de l'agence : Http://www.actimmo58.fr/i/redac/honoraires?honofor=1
  • Date de réalisation du DPE : 10/05/2024
  • DPE coût min conso : 2480
  • DPE coût max conso : 3400
  • DPE date référence conso : 01/01/2024
  • Surface terrasse : 50

ENERGIE

245 kWhEP/m².an

GES

53 kgeqCO2/m².an

Contacter l'agent immobilier

Je suis d'accord avec les Conditions d'utilisation

Partagez cette page

Copier

Ou partager avec

 
<
Retour

Réinitialiser le mot de passe

Entrez votre adresse e-mail et nous vous enverrons un lien pour changer votre mot de passe.

Commencez à utiliser votre compte

Pour enregistrer vos biens préférés et plus encore

Inscrivez-vous avec votre adresse e-mail

Mot de passe oublié ? Le réinitialiser

Agents immobiliers, déposez vos annonces

Commencez à utiliser votre compte

Pour enregistrer vos biens préférés et plus encore

Je suis d'accord avec les Conditions d'utilisation

Mot de passe oublié ? Le réinitialiser

Agents immobiliers, déposez vos annonces