2417*WIN-2366.agencee-l-estuaire.28-que17110sainne/lpizwz.251+251
4886320

St Georges de Didonne 17110 – Vente Appartement 4 pièces 3 chambres

277.500 €

Bases

Référence agence du bien 251 Vente/Loc… Maison/Appart… Nombre de pièces 4
Surface (m²) 76.58 Surface du terrain (m²) 106.58 Année de construction 2011 Chambres 3 chambres
Salles de bain 1 salle de bain Prix au m² 3.624 €

Description

  • Description :

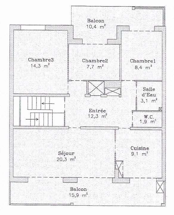
    Royan- Bel appartement, traversant, lumineux, de 4 pièces, 3 chambres à deux pas du centre-ville et de la plage. Il possède une terrasse de 16 m² et un balcon de 10 m². Vous profitez d'une vue dégagée. Principalement baigné de lumière par le sud, vous profitez d'un séjour, une cuisine aménagée et équipée, une classieuse entrée avec placard. Le bien a été rénové, il y a une salle d'eau et un WC indépendant. Le chauffage est électrique, vous profitez d'un grand grenier à l'étage supérieur. L'appartement se situe à 200 mètres de la plage.
    Les informations sur les risques auxquels ce bien est exposé sont disponibles sur le site Géorisques.

Localisation

Caractéristiques

  • Nombre d'étages : 3
  • Etage : 2ème
  • Nombre de WC : 1
  • Charges : 25
  • Libellé : Appartement - 76.58m ²
  • WC séparés 
  • Orientation sud 
  • Nombre de balcons : 1
  • Terrasse 
  • Câble TV 
  • Honoraires à la charge de : Acquéreur
  • Part des honoraires pour l'état des lieux : 0.00
  • Barème des honoraires de l'agence : Www.agencedelestuaire.com/Honoraires.pdf
  • Date de réalisation du DPE : 13/02/2025
  • DPE coût min conso : 1830
  • DPE coût max conso : 2520

ENERGIE

260 kWhEP/m².an

GES

10 kgeqCO2/m².an

Contacter l'agent immobilier

Je suis d'accord avec les Conditions d'utilisation

Partagez cette page

Copier

Ou partager avec

 
<
Retour

Réinitialiser le mot de passe

Entrez votre adresse e-mail et nous vous enverrons un lien pour changer votre mot de passe.

Commencez à utiliser votre compte

Pour enregistrer vos biens préférés et plus encore

Inscrivez-vous avec votre adresse e-mail

Mot de passe oublié ? Le réinitialiser

Agents immobiliers, déposez vos annonces

Commencez à utiliser votre compte

Pour enregistrer vos biens préférés et plus encore

Je suis d'accord avec les Conditions d'utilisation

Mot de passe oublié ? Le réinitialiser

Agents immobiliers, déposez vos annonces