1762*VALMONT.l-immoere-dealmont.6-csud74000annecy/lpizwz.470B23+21456
4635001

Charvonnex 74370 – Vente local

275.000 €

Bases

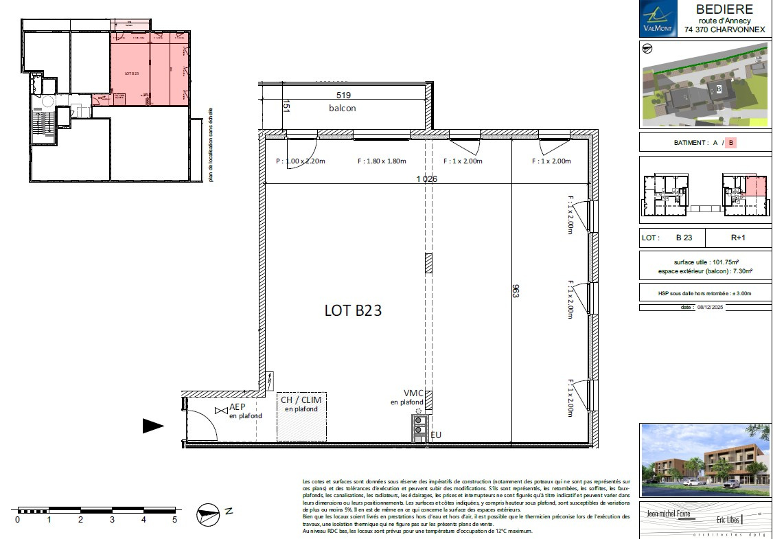
Référence agence du bien 470B23 Vente/Loc… Maison/Appart… Surface (m²) 101.75
Chambres 0 chambre Salles de bain 0 salle de bain Prix au m² 2.703 €

Vidéo / Visite virtuelle

  • Vidéo :

Description

  • Description :

    Démolition en septembre - Nous démarrons par les travaux de la maison de santé et dans la continuité, nous réalisons 2 bâtiments modernes et dans l'air du temps avec plus de parkings

    Des commerces spacieux en rez, des bureaux ou locaux d'activités à l'étage ou profession libérale.... - c'est le nouvel endroit où il faut être à Charvonnex et au dernier étage de belles terrasses

    Pour en savoir plus contacter Christelle au 04 50 46 10 10 ou 06 24 20 21 53
    SARL VALMONT - 6 CHEMIN DES FINS SUD 74 000 ANNECY

Localisation

Caractéristiques

  • Etage : Rez-de-chaussée
  • Activités commerciales : Divers, Tabac, Presse, Loto, Cave à vin, Sandwicherie, Chocolatier, Glacier, Pâtisserie, Salon de coiffure, Parfumerie, Esthétique, Ameublement, Electroménager, Radio TV Hi-fi, équipements de la personne, Maroquinerie, Bijouterie, Optique, Chaussure, Prêt à porter, Cordonnerie, Lingerie, Boucherie, Charcuterie, Traiteur, Poissonnerie, Rôtisserie, Agence de voyage, Commerce de luxe, Jardinerie, Parapharmacie, Profession Paramédicale, Agence immobilière, Laverie, Salle de sports, bijouterie, Fleurs, Librairie, Photo, Services à la personne, Blanchisserie / teinturier, Multiservice, Pressing, Cadeaux, Imprimerie, Papeterie, Profession Médicale
  • Libellé : LOCAUX D'ACTIVITES - COMMERCES - BUREAUX - PROFESSION LIBERA
  • Type de cuisine : Aucune
  • Prix hors taxes 
  • Barème des honoraires de l'agence : Http://www.valmont74.fr/i/redac/honoraires?honofor=1
  • Date de réalisation du DPE : 00/00/0000
  • DPE date référence conso : 00/00/0000

GES

Valeur non communiquée

Contacter l'agent immobilier

Je suis d'accord avec les Conditions d'utilisation

Partagez cette page

Copier

Ou partager avec

 
<
Retour

Réinitialiser le mot de passe

Entrez votre adresse e-mail et nous vous enverrons un lien pour changer votre mot de passe.

Commencez à utiliser votre compte

Pour enregistrer vos biens préférés et plus encore

Inscrivez-vous avec votre adresse e-mail

Mot de passe oublié ? Le réinitialiser

Agents immobiliers, déposez vos annonces

Commencez à utiliser votre compte

Pour enregistrer vos biens préférés et plus encore

Je suis d'accord avec les Conditions d'utilisation

Mot de passe oublié ? Le réinitialiser

Agents immobiliers, déposez vos annonces