2089*aemimmobilier-g.aem-immobilier.lesnan34710lesnan/lpizwz.O10000199+199
4611536

Sérignan 34410 – Vente maison/villa 4 pièces 3 chambres

465.000 €

Bases

Référence agence du bien O10000199 Vente/Loc… Maison/Appart… Nombre de pièces 4
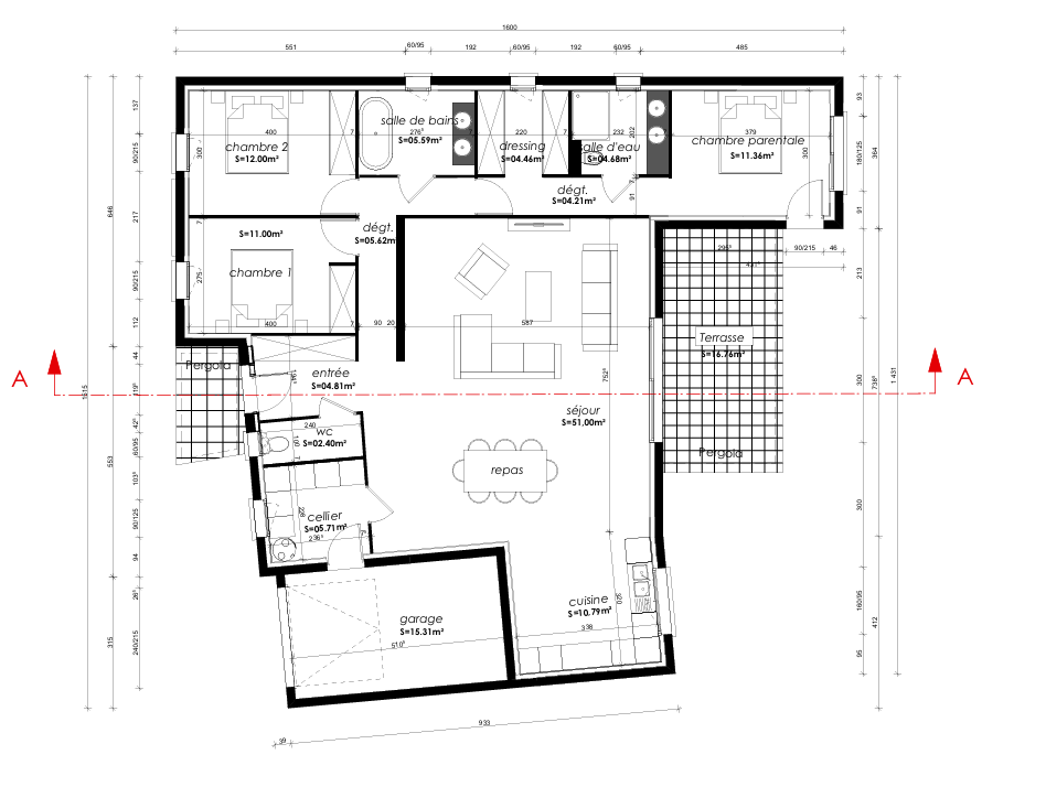
Surface (m²) 133 Année de construction 2025 Chambres 3 chambres Salles de bain 2 salles de bain
Prix au m² 3.496 €

Vidéo / Visite virtuelle

  • Vidéo :

Description

  • Description :

    Villa 133 m2 3 chambres Sérignan Frais de notaire réduits

    À Sérignan, à moins d'un kilomètre de la plage, découvrez cette villa de plain-pied de 133 m2, édifiée sur une parcelle de 403 m2 prête à être paysagée.
    L'agencement privilégie confort et modernité. Une entrée avec placard et WC indépendant mène à une spacieuse pièce de vie baignée de lumière, ouverte sur une terrasse et un jardin intimiste. L'espace nuit comprend une suite parentale avec dressing, salle d'eau et WC, deux chambres avec placards intégrés ainsi qu'une salle de bain supplémentaire.
    Un garage et une buanderie complètent l'ensemble.
    Prestations soignées : climatisation gainable, menuiseries aluminium double vitrage, volets roulants électriques, chauffe-eau thermodynamique.
    Villa conforme RT 2012 et couverte par la garantie dommage-ouvrage.
    Avantage exclusif : frais de notaire réduits. Sur le prix affiché de 465 000 EUR, cela représente une économie d'environ 23 000 EUR par rapport à l'ancien.
    Environnement calme et recherché, maison disponible immédiatement.
    * propositions d'aménagement
    Honoraires à la charge du vendeur. Visite vidéo disponible. Informations sur les risques : www.georisques.gouv.fr
    SARL AEM LOC IMMO

Localisation

Caractéristiques

  • Nombre d'étages : 1
  • Etage : Rez-de-chaussée
  • Nombre de WC : 2
  • Quartier / proximité : Mer, plage
  • Libellé : Maison 4P - Plain-pied - Garage
  • Type de chauffage : Individuel électrique
  • Orientation sud 
  • Nombre de parkings : 3
  • Nombre de boxes : 1
  • Terrasse 
  • Climatisation 
  • Aménagement pour handicapés 
  • Mandat en exclusivité 
  • Coup de coeur 
  • Transport : station : Bus, gare, aéroport
  • Surface séjour : 62
  • Nombre de terrasses : 1
  • Honoraires à la charge de : Vendeur
  • Barème des honoraires de l'agence : Https://aemlocimmo.la-boite-immo.com/i/redac/honoraires?honofor=1
  • Date de réalisation du DPE : 24/06/2025
  • DPE coût min conso : 460
  • DPE coût max conso : 650
  • DPE date référence conso : 01/01/2021
  • Surface terrasse : 16

ENERGIE

35 kWhEP/m².an

GES

1 kgeqCO2/m².an

Contacter l'agent immobilier

Je suis d'accord avec les Conditions d'utilisation

Partagez cette page

Copier

Ou partager avec

 
<
Retour

Réinitialiser le mot de passe

Entrez votre adresse e-mail et nous vous enverrons un lien pour changer votre mot de passe.

Commencez à utiliser votre compte

Pour enregistrer vos biens préférés et plus encore

Inscrivez-vous avec votre adresse e-mail

Mot de passe oublié ? Le réinitialiser

Agents immobiliers, déposez vos annonces

Commencez à utiliser votre compte

Pour enregistrer vos biens préférés et plus encore

Je suis d'accord avec les Conditions d'utilisation

Mot de passe oublié ? Le réinitialiser

Agents immobiliers, déposez vos annonces